田園磚砌櫥柜制作方法之一——水泥鋼筋做法
合肥裝修公司【泓鑒】介紹一個田園風格櫥柜制作供大家參考。
1、臺面即櫥柜的上表面,成品櫥柜一般采用人造石,天然石材。
田園風格櫥柜也可以采用人造石,天然石材,這樣就不用做櫥柜的上表面。等搭建完成后,去櫥柜店直接定做即可。
此套田園風格櫥柜采用的是瓷磚鋪貼上表面。瓷磚可以采用墻磚或地磚。此套使用的是墻磚;墻磚做的櫥柜臺面,很有光澤,擦干凈的時候亮亮的,質感很強。也很好打掃,輕輕擦就很干凈。建議選擇帶花紋的,耐臟。
計算臺面的長度、寬度,根據尺寸設計水泥的寬度、長度。
2、立板即櫥柜的側面,起到支撐柜體的左右。
立板的間距不能太大,否則臺面容易塌陷。一般間距400到900,當然越小越好。確定了間距,可以計算立板數量,然后根據櫥柜尺寸計算立板的寬度、高度。
3、橫隔板,在櫥柜內部起到劃分空間的作用。
一般一層隔板就夠了。確定隔板安裝高度,在立板上面標注出來。
4、根據灶具、水槽的挖孔尺寸,在臺面的板上標注出來。
5、如果也做洗面池,確定洗面盆的挖孔尺寸,在洗面池臺面的板上標注出來。
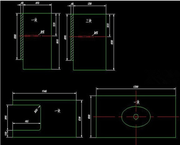
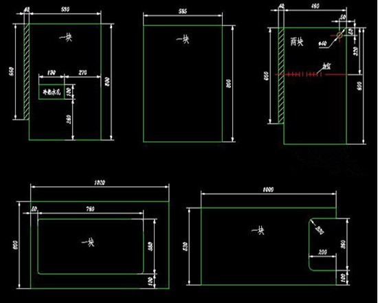
下面給一個泓鑒設計CAD圖紙,供同學參考。

櫥柜設計圖紙1

櫥柜設計圖紙2
田園風格櫥柜設計圖說明:
1、圖中斜紋陰影部分為木質,其它為水泥材質;
2、木質為鐵釘固定在水泥板內,高度為柜門高度,下部留出踢腳線的空間;
3、因為此圖為非標櫥柜,成品尺寸550厚×820高×3060cm長。一般標準櫥柜的尺寸范圍600厚×800~890高×長無限制。所以如果需要做標準櫥柜,尺寸需做相應更改。
4、加釘為在水泥板中嵌入鐵釘,可以在鐵釘上放置橫板;
5、洗面盆為橢圓型,最好先買,根據實物再做面板,以免出現較大誤差。
第3步:水泥板制作和櫥柜框架搭建
所做工作:
1、根據設計圖紙,找師傅制作水泥板。
一般制作周期1周左右,即等水泥干透的時間。水泥板中需要加鐵釘(如上圖,用于拖住橫隔板)需要在側面加木龍骨或木板,用于固定合葉。
注意:需要留出水、氣管開孔,水槽、灶具開孔同時留空。
2、找水工、電工鋪設水管、電路。
3、制作好的水泥板,按照圖紙順序搭起來。
給水泥板編號,然后找泥工按照編號順序從里到外,從立板到臺面,用水泥、細沙壘起櫥柜框架。一般搭建時間為1天左右。

櫥柜的水泥板
櫥柜中的水槽

櫥柜中的水槽
此套案例的洗面臺也是水泥做的,結實又耐用。洗面臺的做法和田園櫥柜一樣,除了是裝洗面盆。最邊的一扇單開門中加裝一塊橫隔板,用于存放物品。

洗面臺砌好
第4步:瓷磚鋪貼
瓷磚鋪貼是很重要的一步,之間覺得田園櫥柜的外觀。是各位同學充分發揮想象力的時候。可以選擇多種規格:大磚、小磚,多種花色,根據個人喜好。
特別說明是櫥柜的側延用磚:
有3種瓷磚可以選擇:
1:比較細的腰線。
5CM的腰線現在很常見,用在做邊沿裝飾很漂亮。可以在建材城選購仿古磚品牌的,比如馬可波羅、金意陶陶瓷、奧米茄陶瓷、意大利進口蜜蜂磚等,都有這樣的腰線,就是價格比較高。
2:用馬賽克。
馬賽克比較小,可以剪成任意種組合來使用,正好時候做腰線,花色、品種也很多,用量很少,1米腰線用0.1平方馬賽克。就是鋪貼工錢比較高。
3:大瓷磚切割。
如果泥工手藝很好,可以用大瓷磚切割的辦法,不過記得要對縫。而且切成5CM的,損耗很大,工費要的很高。一般可以選用采用的馬賽克腰線。
準備材料:瓷磚、腰線、水泥、細沙、填縫劑、馬賽克專用膠。步驟不用講了,泥工師傅都會貼。你把自己的花色講清楚就行了。另外建議櫥柜內部空間很小,貼大磚浪費很大。可以貼20×30的便宜小磚,不影響使用,又節約成本。

廚房馬賽克

廚房馬賽克
洗面臺的馬賽克。剛鋪好的馬賽克,填縫劑還未擦掉。鑲嵌的藍色氣泡水晶玻璃馬賽克,看著象海水里的氣泡。

洗面臺的馬賽克

塞班風格的洗面臺;塞班風格的洗面臺一片椰海風情。選的藍色花紋的瓷磚,拍的不是太清楚

洗面臺波浪造型的腰線;洗面臺可以與墻面瓷磚聯在一起,沒有單獨的一般水槽的上延,不會積灰。腰線是波浪造型的,腰線藍色的花朵,枝葉彎彎曲曲,象夏日里的夢境。
櫥柜整體
當前的高度是82CM,寬度55CM,在設計范圍之內。貼磚師傅貼的還是比較薄的。圖中開的圓孔為天然氣軟管過孔,圖中一排橫釘為了放置隔板。一個小失誤,側板設計的長出了2cm,只好用一塊馬賽克補上。還沒有安裝門,所以木龍骨顯得好陳舊。
第5步:定做櫥柜門
強烈建議:
櫥柜的門板、橫隔板。一定要找專業的櫥柜店定做。現在一般櫥柜店都可以單獨做門,按平方算,包安裝。木工做的容易變形,防水也差一些。自購合葉、滑道、拉籃、把手;找家信譽不錯的櫥柜店定做門板。一般上門測量,上門安裝,連不是在店里買的拉籃,滑道一并安裝。然后把合葉、滑道、拉籃、把手買齊,在家里等著來師傅裝就行了。一只門板的制作周期15天。
水泥櫥柜的灶具鑲嵌

水泥櫥柜的灶具鑲嵌也是一個需要精確計算的問題。在做之前就要定好灶具,量好尺寸,制作的時候按照尺寸留孔。

拉藍的設置
櫥柜設計中的拉籃是必不可少的一項。拉籃既方便,又節約空間。我在內部加了一塊板,訂在地板上面,這樣拉籃的劃道就可以固定在板上了。
拉籃要事先考慮好安裝的位置。如果習慣用右手,就安裝在灶具的右邊,如果習慣用左手,就安裝在灶具的左邊。當然如果空間足夠大,安裝在灶具的下面也行,就是使用中要注意,拉籃一般一直拉開,會經常碰到。最后還有一點經驗,就是櫥柜的把手。發現把手安裝在門的中間并不方便開門,所以在不影響美觀的情況下,建議把手裝在開門的方向邊上。
田園風格洗面臺

田園風格洗面臺出來的效果比我想象的要好!防水、防火、防酸堿,很耐用,又很漂亮。
田園風格洗面臺

使用了一段時間發現,帶花紋的瓷磚特別適合懶人,就是臟了也看不出來。
最后一步:有夢想就有可能——田園風格櫥柜完美收關
此次合肥裝修公司田園風格櫥柜做下來,雖然并沒有節約很多錢,也有一些地方沒有達到設想。但整體效果基本滿意,而且更加環保、健康,結實、耐用。同時又多了一種經驗,下次一定可以做的更好。 看了這套田園風格的櫥柜,你有沒有受到一點啟發呢?反正我發現做田園櫥柜,就象小時候玩的積木,堆堆建建,每個人總能完成不一樣的杰作,完全靠自己的創意。那么,一起來搭積木吧!
|