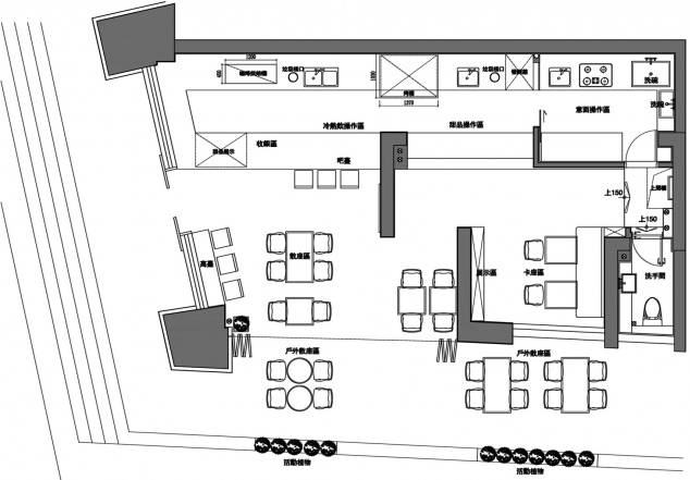
現代風格咖啡廳裝修案例,咖啡廳設計設計立意,以現代時尚的裝飾手法與自然相融入給人營造出一個別具一格的環境。 滿足實際功能需求的同時把各個功能空間進行了合理的劃分,使整個空間布局協調,自然。頂面大量的黑色框架的使用一是給頂面的平淡增添一種設計感,在適當的吊框上放上木板又可以放些吊籃以及小型的配載花束。空間用簡約的黑白色奠定經典干凈的調性,細節上的黑色拉絲金屬板制成了門窗,干凈簡潔的操作臺采用白色石材,造出隨意輕松的獨享氛圍。家具沿用了空間的黑白色彩,讓食物成為空間的主角,這是一個在現代與溫暖之間達到完美平衡的咖啡吧。白色總是給人無盡的想象力,適度的放空思維有利于身心的調理。而黑色帶給人冷靜的現實感,沉穩而接地氣,避免人處于過度空曠的空間中感到迷茫不知所措,形成包容而實在的交互空間。

現代風格咖啡廳裝修案例 電話咨詢:0551-63732980

現代風格咖啡廳裝修案例

現代風格咖啡廳裝修案例

|